Home
L’azienda
Chi siamo
Competenze
Ricerca e tecnologie
Partner
Via dei Mille
Il progetto
Il cantiere
In vendita
Altre proposte
Altamura | Via Madonna della Croce
Altamura | Via Pompei
Altamura | Via Londra
News
Contatti
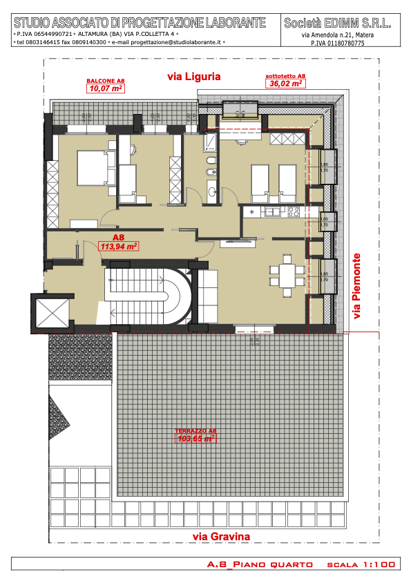
A8
Edimm edilizia immobiliare
Via dei Mille
In vendita
A8
←
Previous
Next
→
A8 – PIANO QUARTO
←
Previous
Next
→